Microvellum Community

Dado in Shelf Edge

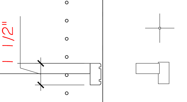
Good morning, I trying to make the Shelf Edge to have a dado and also to have a 1/8" Lip UP 
Below a picture of what I have and what I need, and also the globals that is currently set.
And also, how do I change the Size from 1-1/2" to 1-3/8"?
Thanks in advance



    Toolbox BSB Survey



    Have you been using Toolbox BSB? We'd love to hear what you think!

    Take the Survey

      MVU eLearning



      Grow Your Knowledge
      Follow along with RJ as he takes you on a journey to build your foundational knowledge of Toolbox.


        Follow us on:

                 

          ERP for Millwork Shops


          Discover how Microvellum and INNERGY streamline operations for cabinet shops and millwork manufacturers.