Microvellum Community

Grain matching and grain direction issues..

We have a large job where we need to grain match across several cabinets, including horizontal grain on all doors and FEs. It does not seem to be working properly and I don't know where I am going wrong. Any insight will be helpful or should I create a ticket, or get training?

I selected grain direction in the wizard.




All looks good when its drawing...





I select perfect grain in the subassembly, assign container number, and it is showing width for grain, save to product. I do this to all 3 base cabinets shown. (Making sure all on grain container #2)








I create a nest with these parts and the grain is going vertically, not grain matched.








So I go into the part properties, and change all the door flat panels to have #3 grain container, force width, and select a 10ft material with the grain going along length. Save to product and all are good verifying with the yellow folders. I do this for all 3 base cabinets. 








I create another test to see how it nests and get this error message.








This seems to work. I realize the cabinets are out of order by number in the drawing therefore its not matching in order on the nest. I assume I need to change that to have it lay out nice. 











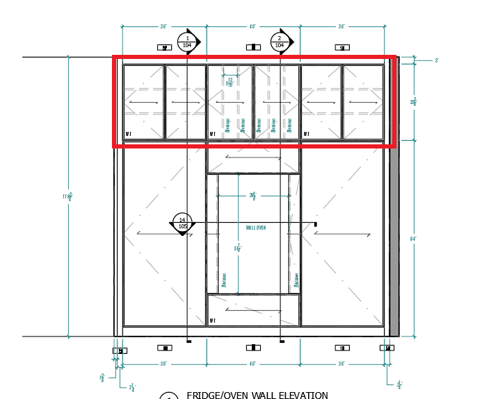
So I wanted to move to another elevation, you can see below I am trying to match all the upper cabinets together across the doors. I do the same in part properties, and verify everything is all good.







This is the result in nest though. All the hinge sides are touching therefore putting this all backwards per cabinet. I do get the same error message so maybe this is a machine point problem? I tried flipping as you see here and ran it again without flipping and having a Face 6 file but it does the same thing.








My questions are:

      1. Do you really have to go into part properties for every cabinet and do it this way? I thought the wizard and subassembly prompts would be good enough.

      2. What is going on with the doors? Why are they acting that way? How can I solve this?

    Toolbox BSB Survey



    Have you been using Toolbox BSB? We'd love to hear what you think!

    Take the Survey

      MVU eLearning



      Grow Your Knowledge
      Follow along with RJ as he takes you on a journey to build your foundational knowledge of Toolbox.


        Follow us on:

                 

          ERP for Millwork Shops


          Discover how Microvellum and INNERGY streamline operations for cabinet shops and millwork manufacturers.