Microvellum Community

Miter_Side_Front_Edges Option in Corner Cabinets doesn't appear to be working correctly.

FL: 25.0319


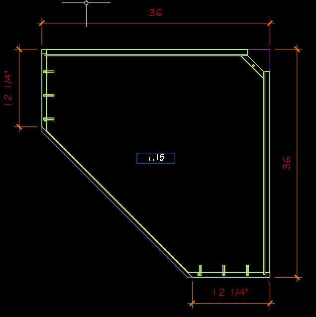
As I have been working on and testing cabinets, I have found what I think is a problem in the Frameless Corner Cabinets.  In the screen shot below I have drawn 2 open Corner Upper cabinets but it this is happening on Base/Tall/Upper that are open or have fronts on them.  

After drawing a stock sized cabinets, I wanted to use the Miter_Side_Front_Edges option under the Construction Options.  What we are finding is that cabinet sides and depth don't adjust to be the correct depth to align with other cabinets.  In this case upper cabinets are 13" deep and when using the Miter_Side_Front_Edges option we would expect that the side depth at the outside maintain the 13" depth.  

In this example it would make the parts align with the 2D floor plan line that I have highlighted in pink.  




    Toolbox BSB Survey



    Have you been using Toolbox BSB? We'd love to hear what you think!

    Take the Survey

      MVU eLearning



      Grow Your Knowledge
      Follow along with RJ as he takes you on a journey to build your foundational knowledge of Toolbox.


        Follow us on:

                 

          ERP for Millwork Shops


          Discover how Microvellum and INNERGY streamline operations for cabinet shops and millwork manufacturers.