Microvellum Community

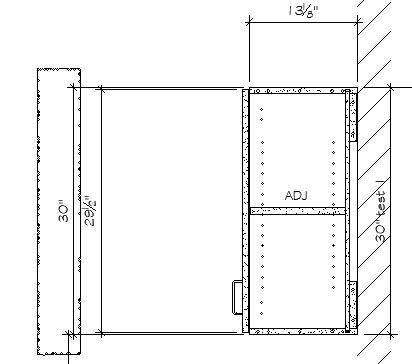
Product overall dim in section

This morning I have dug into edit design data in more ways than one and I do not know how to locate the drawing token for the overall product. Could someone please help me with this. See attached image. 

    Toolbox BSB Survey



    Have you been using Toolbox BSB? We'd love to hear what you think!

    Take the Survey

      MVU eLearning



      Grow Your Knowledge
      Follow along with RJ as he takes you on a journey to build your foundational knowledge of Toolbox.


        Follow us on:

                 

          ERP for Millwork Shops


          Discover how Microvellum and INNERGY streamline operations for cabinet shops and millwork manufacturers.