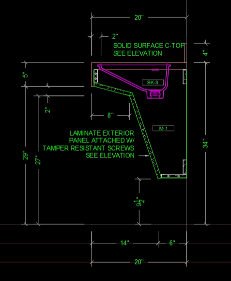
Anti-Ligature ADA Sink Vanity (Fully Enclosed)
Backstory: This past year we have done multiple projects where they insisted on fully enclosed Anti-Ligature ADA Sink Vanities. So fully enclosed with special fasteners that that couldn't normally be undone as well as no place or point where someone could get ahold of or hurt themselves. Luckly we could design the first one and then copy/paste it in place to be used everywhere else that it was needed. One thing that many of the jobs really keyed in on was the bottom of the shaped cabinet not being any more than 6" off the wall to the face of the closure panel.
I am wondering if anyone has updated their floating ADA Sink Vanity to be fully enclosed and how they handled it. That we really want to do is add the extra parts that need to be there to enclose the ADA vanity as well as have them located in 3D properly while also giving us the correct 2D elevations.
The things that we ran into specifically is all the math to get the parts to move parametrically as well as fixing the 2D elevations. Even with the current floating ADA Sink Vanity if you change the default parameter to much the 2D elevations go buggy.

Toolbox BSB Survey
Have you been using Toolbox BSB? We'd love to hear what you think!
Take the Survey
MVU eLearning
Grow Your Knowledge
Follow along with RJ as he takes you on a journey to build your foundational knowledge of Toolbox.
Follow us on:
ERP for Millwork Shops
Discover how Microvellum and INNERGY streamline operations for cabinet shops and millwork manufacturers.