Microvellum Community

Why do text fonts publish different on pdf documents

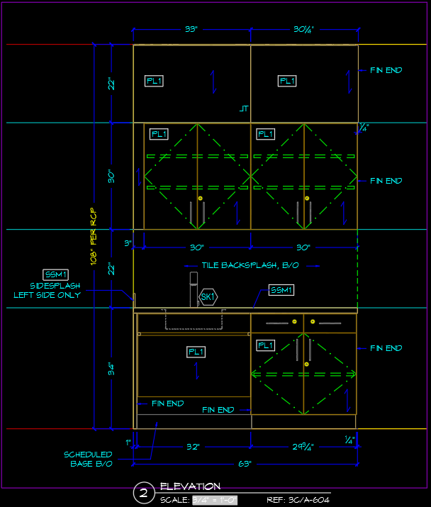
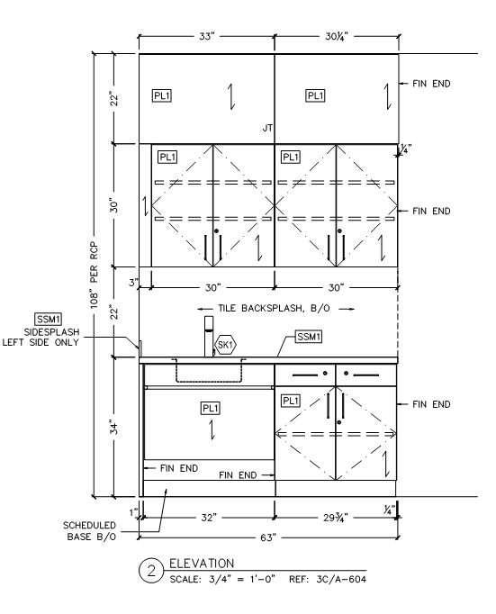
while using sheet set manager to publish drawings to pdf's. different microvellum users get different text fonts to show up. is there or what setting would someone have clicked or unclicked to allow this to happen below is a snip of the drawing and the published pdf


 

    Toolbox BSB Survey



    Have you been using Toolbox BSB? We'd love to hear what you think!

    Take the Survey

      MVU eLearning



      Grow Your Knowledge
      Follow along with RJ as he takes you on a journey to build your foundational knowledge of Toolbox.


        Follow us on:

                 

          ERP for Millwork Shops


          Discover how Microvellum and INNERGY streamline operations for cabinet shops and millwork manufacturers.